To ogłoszenie jest już nieaktualne

To ogłoszenie jest już nieaktualne.

Ogłoszenia archiwalne prezentujemy w celu budowania wartościowej bazy średnich cen nieruchomości.

Zobacz aktualne ogłoszenia z lokalizacji: Łochowo, kujawsko-pomorskie

Lokal użytkowy na sprzedaż Łochowo,

225,40 m2
690 000 PLN 3 061 zł/m2
Opis
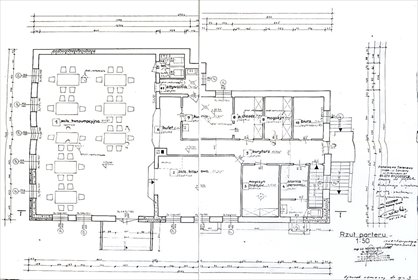
IDEA NIERUCHOMOŚCI poleca działkę o powierzchni 633m2, zabudowaną wolno-stojącym budynkiem jednokondygnacyjnym o łącznej powierzchni 225,4m2 w dobrym stanie technicznym o przeznaczeniu usługowo-handlowo- gastronomicznym. Doskonała nieruchomość na gastronomię lub innego rodzaju działalność usługową. MOŻLIWOŚĆ ADAPTACJI NA DOM MIESZKALNY Nieruchomość położona w wygodnym punkcie komunikacyjnym w Łochowie, działka ogrodzona, możliwość zagospodarowania pięknego ogrodu. Budynek wybudowany w 1997 roku z dużą starannością i zastosowaniem materiałów wysokiej jakości. Funkcjonalny układ pomieszczeń daje ogromne możliwości dla działalności gospodarczej. Budynek jednokondygnacyjny składa się z : *parteru - wejście z poziomu 0, wysokość pomieszczeń ponad 3m, na który składa się: -sala konsumpcyjna o pow. 93,20 -bufet o pow. 6,40m2 -zmywalnia 5,40m2 -pomieszczenie kuchenne o pow. 12,0m2 -pomieszczenie magazynowe 6,80 m2 -pomieszczenie magazynowe 6,10 m2 -pomieszczenie magazynowe 5,0 m2 -pomieszczenie magazynowe 6,80 m2 -pomieszczenie magazynowe 4,0 m2 -pomieszczenie magazynowe 8,0 m2 -pomieszczenie sanitarne-toalety 3,4 m2 -pomieszczenia sanitarne dla klientów 8,0 m2 -pomieszczenie gospodarcze 2,40 m2 -hall wejściowy 6,20 m2 -korytarze komunikacyjne 11,70 m2 -kotłownia w pomieszczeniach piwnicznych 40,0 m2 Układ funkcjonalno- architektoniczny zaprojektowano do potrzeb technologicznych tworząc ciągi technologiczne dla działalności gastronomicznej MOŻLIWOŚĆ NEGOCJACJI CENY !!!!! Zapraszam do kontaktu Adam Kranz 511-829-524 OPIEKUN OFERTY ADAM KRANZ 511-829-524 Oferta wysłana z systemu Galactica Virgo
Więcej
Lokal użytkowy:
na sprzedaż
Powierzchnia całkowita:
225,40 m2
Lokalizacja:
województwo: kujawsko-pomorskie powiat: bydgoski gmina: Białe Błota miejscowość: Łochowo